Skip to content
EN
info@gexan.co.uk
+48 574 410 333
Gexan
About us
Layout Examples
Design Samples
Contacts
Request a Quote
Modular Bathroom Pods
Layout Examples
Home
>
Layout Examples
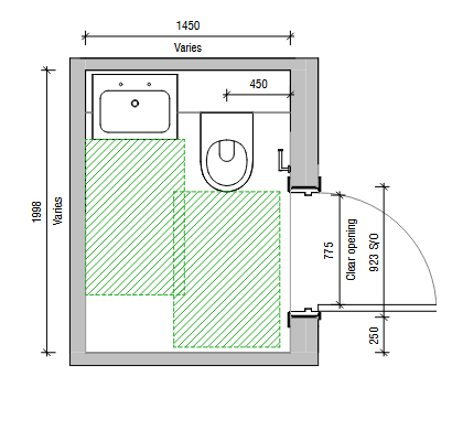
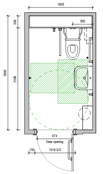
Type BP-2A
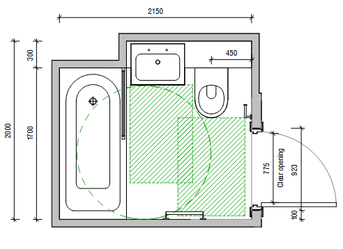
Type BP-2B & BP-2B L
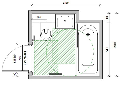
Type BP-3A & BP-3A L
Type BP-3A H & BP-3A H L
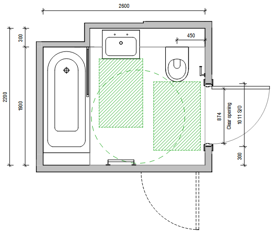
Type BP-3WA
Type BP-3WA H
Type BP-3SA & BP-3SA L
Type BP-3SA H & BP-3SA H L
Type BP-3WS